Lieu
La Turbie
Avancement
En études
Maitrise d’ouvrage
Privée
Description du projet
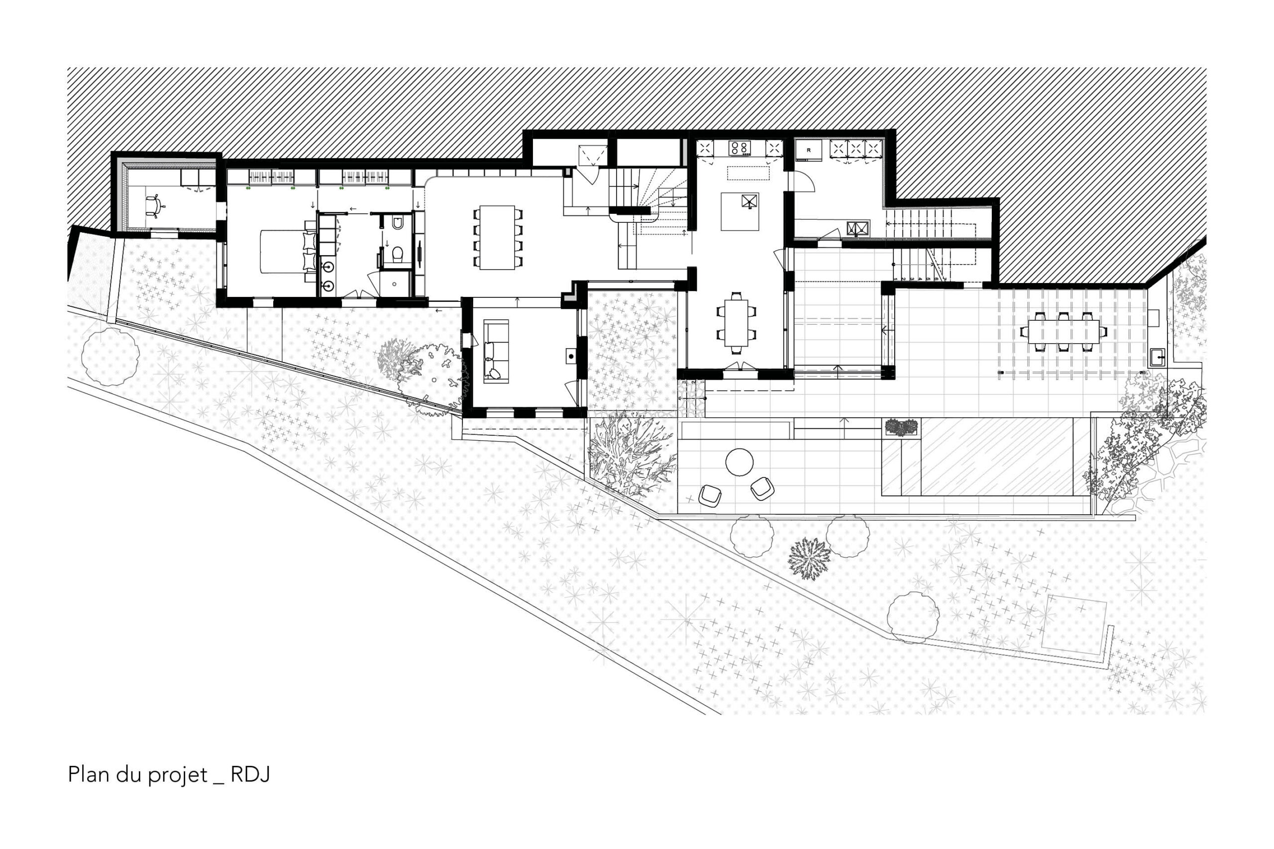
C’est à flanc de colline, entre mer et montagne que ce situe cette maison de famille de 180m². Construite dans les années 80 pour un passionné de la culture japonaise, la maison est le résultat d’un étonnant éclectisme entre modernisme et architecture japonaise. Rénovation compète ne veut pas dire oubli : l’identité unique du lieu est conservée et réinterprétée.
Entreprises
/
Photographe
/










