Lieu
Saint-Paul de Vence
Avancement
Livré en 2024
Maitrise d’ouvrage
Privée
Description du projet
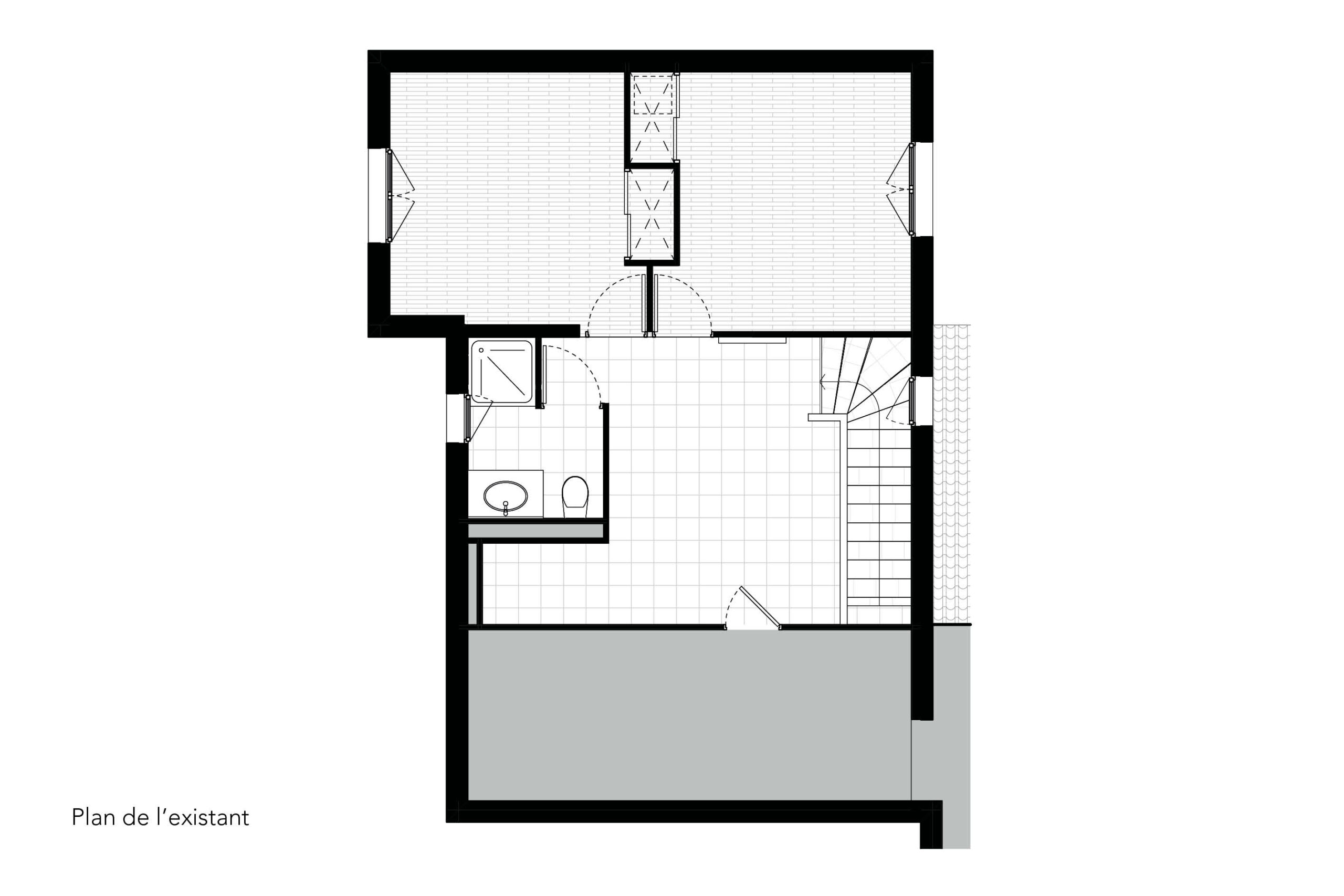
C’est au fond d’un vallon ensoleillé que dors cette charmante maison. Les enfants sont grands. L’étage est vide. C’est l’opportunité d’une mise à neuf. La salle de bain mansardée est repensée pour plus d’efficacité. La rambarde de l’escalier est modifiée pour apporter plus de lumière à l’étage et créer un petit salon chaleureux. Les combles sont isolées et de nombreux rangements intégrés sont créés.
Entreprises
3GM, Aimer fer, Tutzer, Vencelec, Castilla, Bagierri, BB Mobilsystem












