Lieu
Cannes
Avancement
livré en 2025
Maitrise d’ouvrage
privée
Description du projet
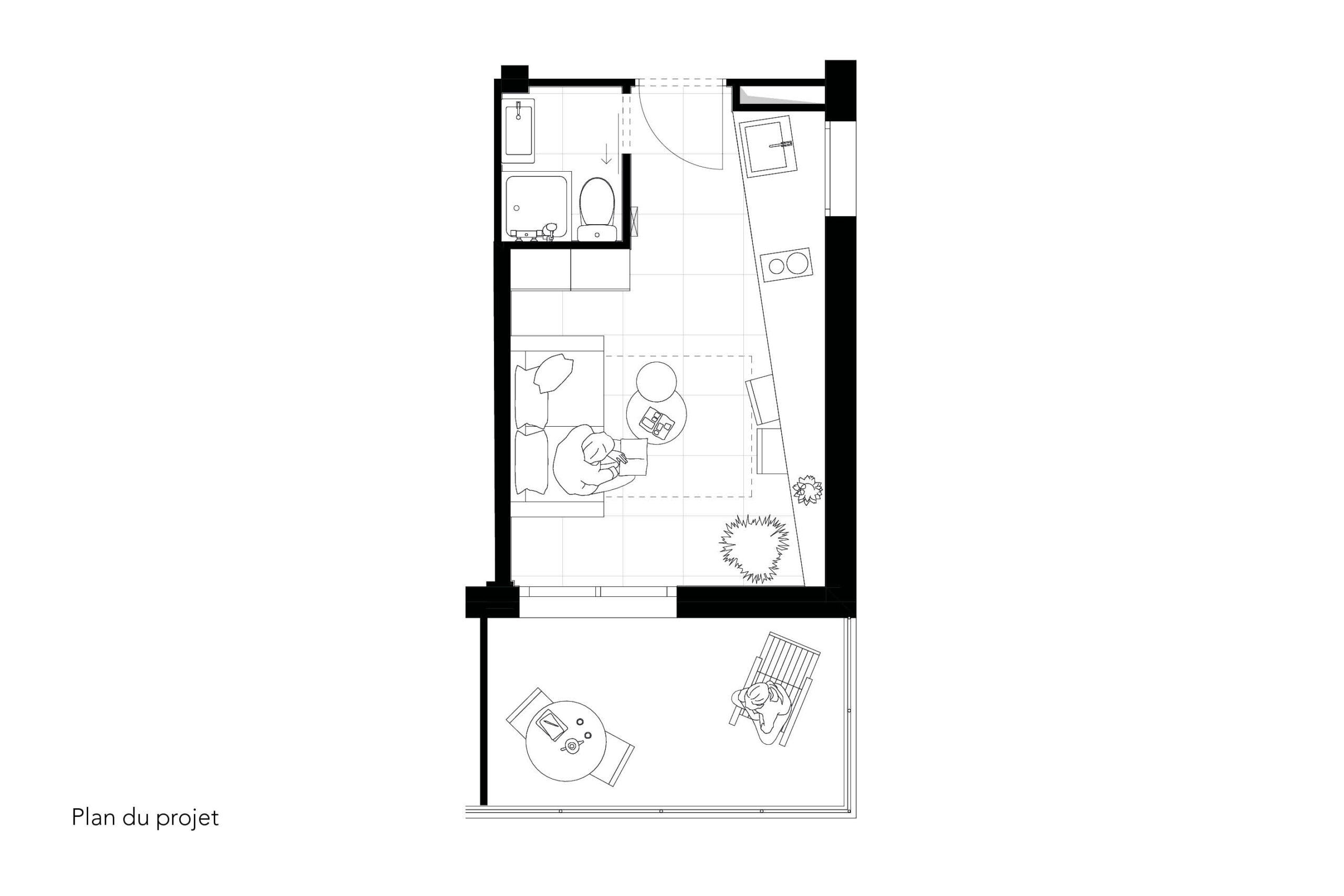
C’est l’été et les vacances au soleil grâce à ce pied à terre à Cannes. Le bleu profond de la mer et un terrazzo incrusté de coquillages, pas de doute, c’est bien l’imaginaire des vacances qui habite le lieu. La cuisine existante étriquée et peu fonctionnelle est ouverte sur le séjour. Un meuble en biais unifie l’espace repas et l’espace de vie en intégrant un bureau dans la continuité de la cuisine.
Entreprises
MS Design, Aimer fer
Photographies
Elodie Artières







